CASE 办公室装修设计

开封办公室设计 >> 办公室装修设计 >>465平米开封办公室装修施工效果图

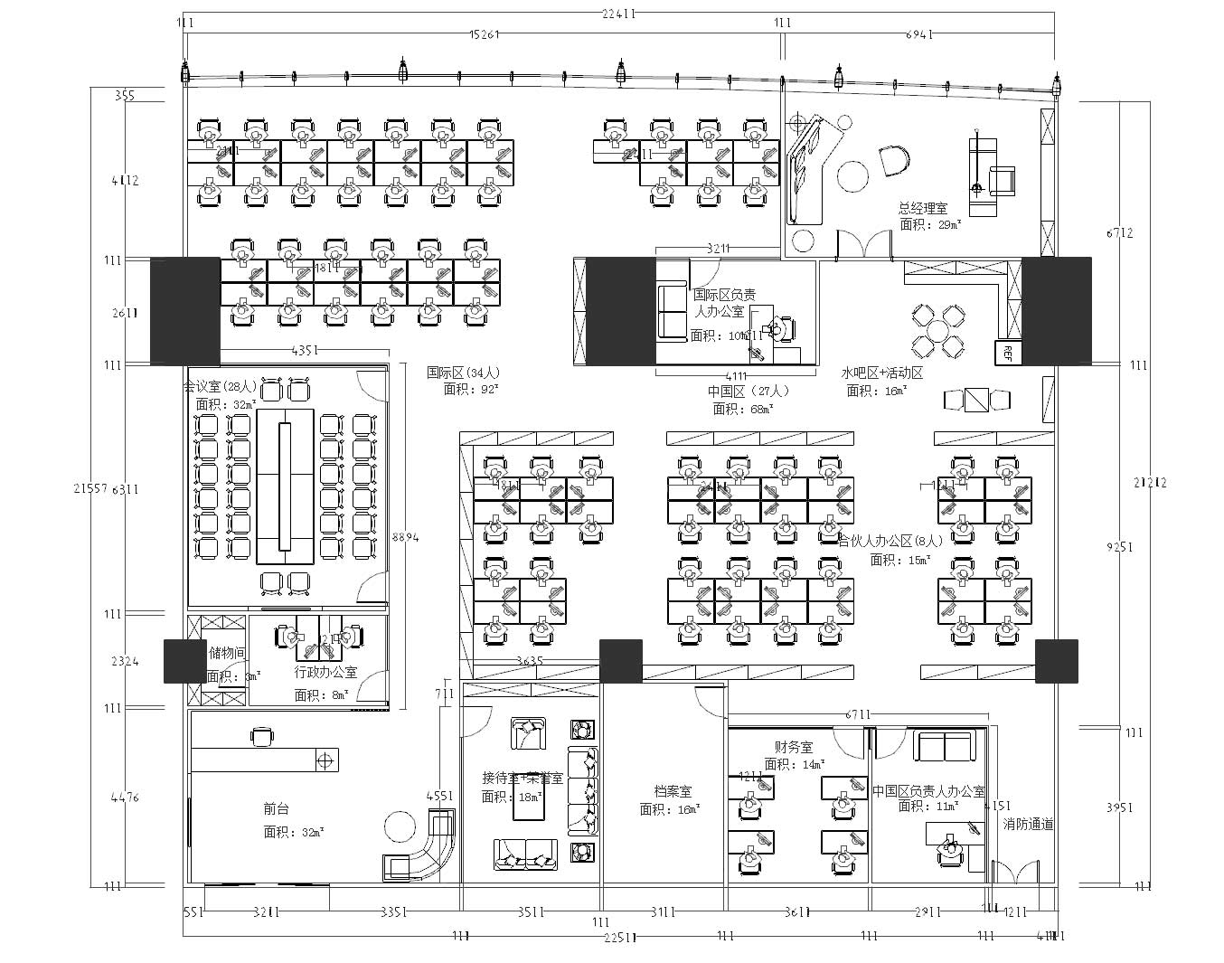
465平米开封办公室装修施工效果图

2025-07-27 53 预约参观

千舟装饰是一家专业的办公室装修设计公司,提供办公室装修设计与施工服务!办公室装修设计案例专区推荐465平米开封办公室装修施工效果图,465平米办公室装修施工效果图,开封办公室装修设计方案、办公室装修施工效果图、465平米办公室装修施工施工报价明细!

RelevantCASE 相关案例

500+
客户见证

customer service

众多大型装修施工案例
办公餐饮商业实力见证
以品质赢得口碑

booking

现在预约咨询,立即享受免费量房设计&施工报价

10秒快速在线申请

  • 请输入空间类型
  • 请输入建筑面积
  • 请输入您的称呼
  • 请输入您的电话